Bank Nieruchomości

Wykończone pod klucz w inwestycji Eolian Park.

ul. Przy Forcie, Ursus, Warszawa

847 000 PLN

Wykończone pod klucz w inwestycji Eolian Park. | Zdjęcie główne
Wykończone pod klucz w inwestycji Eolian Park. | Zdjęcie 1
Wykończone pod klucz w inwestycji Eolian Park. | Zdjęcie 2
Wykończone pod klucz w inwestycji Eolian Park. | Zdjęcie 3
Wykończone pod klucz w inwestycji Eolian Park. | Zdjęcie 4
Wykończone pod klucz w inwestycji Eolian Park. | Zdjęcie 5
Wykończone pod klucz w inwestycji Eolian Park. | Zdjęcie 6

+4

Opis

Mieszkanie na sprzedaż – w trakcie wykańczania zgodnie z projektem architektonicznym 59,05 m² Eolian Park, Warszawa Ursus
Na sprzedaż oferujemy funkcjonalne mieszkanie o powierzchni 59,05 m², położone na 2. piętrze w inwestycji Eolian Park przy ul. Przy Forcie w Warszawie Ursus.
Lokal jest sprzedawany w stanie deweloperskim, z możliwością dokończenia prac zgodnie z przygotowanym projektem architektonicznym oraz koncepcję wystroju wnętrza.
To idealna propozycja dla osób, które chcą wprowadzić się do nowoczesnego mieszkania bez konieczności tworzenia projektu od podstaw – pozostaje jedynie zrealizować zaplanowane rozwiązania.

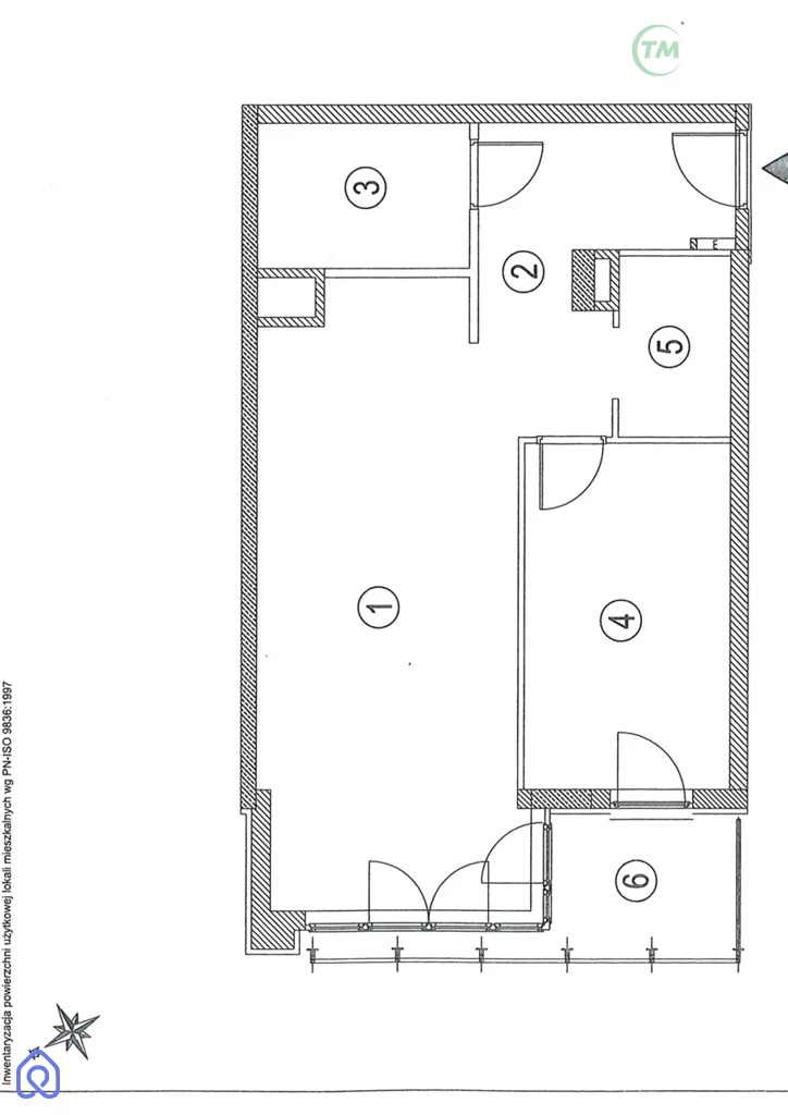
Układ mieszkania
Mieszkanie zostało zaprojektowane z naciskiem na wygodę i funkcjonalność:
przestronny salon z aneksem kuchennym sypialnia z wydzieloną garderobą łazienka ustawny przedpokój balkon
Projekt wykończenia
Mieszkanie posiada opracowany, kompletny projekt architektoniczny, obejmujący:
układ zabudowy stałej i meblowej, dobór materiałów wykończeniowych, koncepcję oświetlenia i elementów dekoracyjnych, projekt kuchni wraz z miejscem pod sprzęt AGD. Wykończenie przewidziane w projekcie zakłada nowoczesny styl, wysoką trwałość oraz funkcjonalne wykorzystanie przestrzeni.

Lokalizacja – Ursus, Eolian Park
Nowe, spokojne osiedle z pełną infrastrukturą wokół: sklepy, komunikacja, tereny zielone oraz szybki dojazd do centrum miasta. Idealne zarówno do zamieszkania, jak i jako przyszła inwestycja.
Dlaczego warto?
gotowy projekt architektoniczny skraca czas przygotowania do wykończenia, możliwość adaptacji niektórych elementów pod własne potrzeby, nowoczesne osiedle, mieszkanie o funkcjonalnym układzie i dużym potencjale aranżacyjnym.
Zapraszam do kontaktu i umówienia się na prezentacje.


We offer for sale a comfortable, modern apartment with an area of 59.05 m² , located on the 2nd floor of the Eolian Park development, Przy Forcie Street, in Warsaw's Ursus district.

Apartment layout:
spacious living room with kitchenette , bedroom with wardrobe , functional hall , elegant bathroom balcony
The apartment is being finished according to the architectural design , using high-quality materials , which will ensure a modern look and durability for years to come.

Additional information:
parking space in the underground garage and a ground-level space - additional fee of PLN 50,000 .
Location
The development is located in Warsaw's Ursus district , one of the most dynamically developing districts. It's a popular choice for families with children , young people looking for their first apartment, and investors .

Green areas and recreation
The proximity to green spaces, such as Achera Park and Fort Włochy , is a major advantage for those who value active recreation and contact with nature. These are excellent places for walks, jogging, or family afternoons outdoors.

Shops, services and restaurants
Within easy reach are the Skorosze Shopping Center and Factory Ursus with numerous shops, restaurants and service points.

Communication
Excellent communication with the rest of the city:
quick access to Aleje Jerozolimskie (approx. 20 minutes to the center of Warsaw), 5 minutes to the S8 route and the Warsaw Southern Bypass , 1.5 km to Warsaw Ursus station, close to the Western Railway Station and Chopin Airport .
Please contact me for additional information and to arrange a presentation.

*Treść niniejszego ogłoszenia nie stanowi oferty handlowej w rozumieniu Kodeksu Cywilnego lecz ma jedynie charakter informacyjny. Staramy się, aby informacje dotyczące nieruchomości były możliwie dokładne, kompletne i aktualne. Ponieważ informacje te często pochodzą od osób trzecich i część z nich nie zawsze daje się zweryfikować, biuro TM Home nie ponosi odpowiedzialności za ich dokładność.

Dla zgłaszających nam swoje nieruchomości proponujemy atrakcyjne warunki współpracy.

Oferta wysłana z programu dla biur nieruchomości ASARI CRM (asaricrm.com)

Informacje o nieruchomości

  • Cena: 847 000

  • Powierzchnia: 59.05 m2

  • Ogłoszenie od: Agencji

  • Sypialnie:

  • Łazienki:

  • Rok budowy: 2023

  • Nieruchomość: Mieszkanie

  • Rodzaj ogłoszenia: Sprzedaż

  • Data wygaśnięcia: 19-11-2027

Informacje o ogłoszeniu dodanym przez agencję

Oferta 1941/6110/OMS

Opiekun oferty: Karolina Krupa, tel 515 299 326

Udostępnij ogłoszenie

Lokalizacja

ul. Przy Forcie, Ursus, Warszawa

Wyświetlenia