Bank Nieruchomości

Działka dla dewelopera-bliźniaki,szeregi,domy !

Oleśnica, dolnośląskie

1 099 000 PLN

Działka dla dewelopera-bliźniaki,szeregi,domy ! | Zdjęcie główne
Działka dla dewelopera-bliźniaki,szeregi,domy ! | Zdjęcie 1
Działka dla dewelopera-bliźniaki,szeregi,domy ! | Zdjęcie 2
Działka dla dewelopera-bliźniaki,szeregi,domy ! | Zdjęcie 3
Działka dla dewelopera-bliźniaki,szeregi,domy ! | Zdjęcie 4

Opis

Zapraszam do zakupu dwóch działek 92/4 oraz 92/7 w pakiecie (jedna działka to droga dojazdowa) pod zabudowę mieszkaniową.
Idealna pod małą kameralną inwestycję deweloperską !!

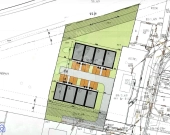
Na ostatnim zdjęciu koncepcja zagospodarowania, oczywiście do własnej aranżacji w celu osiągnięcia własnego PUMu.

Można na niej wybudować :

-domy jednorodzinne,
-bliźniaki
-szeregi.

Obecnie działka nie posiada Warunków Zabudowy ale są możliwe do osiągnięcia.

Instalacje :

Woda miejska - w drodze
Prąd - w drodze
Kanalizacja - w drodze

UWAGA: obecnie działka 93/2 (sąsiadująca z proponowanymi działkami ) szykowana jest przez miasto do przetargu ograniczonego ze względu na brak dostepu z drogi publicznej - jedyny dostęp jest poprzez działkę 92/4

Współpraca z Naszym biurem odbywa się na podstawie umowy pośrednictwa-pobieramy wynagrodzenie.

Bezpieczna transakcja za pośrednictwem NEXUS360 NIERUCHOMOŚCI :
- darmowa pomoc Doradcy przy uzyskaniu najkorzystniejszego kredytu deweloperskiego
- preferencyjne stawki opłat i dogodne terminy u Notariusza
- pełne bezpieczeństwo kupna i sprzedaży na podstawie polisy OC PZU
- kompleksowe wsparcie agenta podczas całego procesu transakcji

Zapraszam na prezentację nieruchomości.

Tomasz Walczak tel. 507-007-952


Nota prawna: Informacje dotyczące opisu nieruchomości podane są przez właściciela, mają charakter wyłącznie informacyjny i mogą podlegać aktualizacji. Oferta dotycząca nieruchomości stanowi zaproszenie do rokowań zgodnie z art. 71 Kodeksu Cywilnego i nie stanowi oferty określonej w art. 66 i następnych KC.

Oferta wysłana z programu dla biur nieruchomości ASARI CRM (asaricrm.com)

Informacje o nieruchomości

  • Cena: 1 099 000

  • Powierzchnia: 3,036.00 m2

  • Ogłoszenie od: Agencji

  • Sypialnie:

  • Łazienki:

  • Nieruchomość: Działka

  • Rodzaj ogłoszenia: Sprzedaż

  • Data wygaśnięcia: 14-11-2027

Informacje dodatkowe

Informacje o ogłoszeniu dodanym przez agencję

Oferta 59/17137/OGS

Opiekun oferty: Tomasz Walczak, tel 507007952

Udostępnij ogłoszenie

Lokalizacja

Oleśnica, dolnośląskie

Wyświetlenia